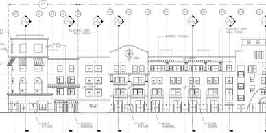
We deliver precise Revit Architecture BIM models from 2D drawings, PDFs, and point cloud data, including Revit family creation, visualization, and rendering. Our models meet required LOD standards, enabling accuracy, efficiency, and seamless collaboration across all project stages.
We deliver comprehensive BIM-based solutions designed to support effective project management, streamline bidding and tendering procedures, and facilitate smooth regulatory approval processes. By integrating advanced BIM methodologies, we provide stakeholders with precise documentation that enhances coordination, reduces risks, and strengthens decision-making at every stage of construction.

We deliver point cloud to BIM services that transform laser scan data into accurate, clash-free 3D BIM models with LOD 100–500 detail. Our Scan to BIM Revit as-built models support renovation, retrofitting, refurbishment, and reconstruction, enabling precise planning and execution for existing buildings and infrastructure.

We provide precision-driven shop and spool drawings that align with project specifications, enabling seamless installation and pre-fabrication. Our deliverables ensure contractors achieve optimized material management, operational efficiency, and on-schedule project delivery.

We provide BIM-based estimation and planning services that enhance cost accuracy, scheduling, and resource management. By leveraging detailed 3D models, our team delivers precise quantity take-offs, BOQs, and construction schedules, helping stakeholders optimize budgets, minimize risks, and ensure timely project delivery.

We deliver specialized Revit family creation services tailored to project needs, ensuring precise, high-quality, and parametric components. Our solutions empower architects, engineers, contractors, and manufacturers to streamline workflows and achieve greater design efficiency.

Architectural visualization provides project owners with powerful design perspectives before construction, supporting promotions, marketing, and investor engagement. Our experts deliver high-quality 2D/3D views, rendered plans, elevations, and detailed visuals using the latest rendering technologies.

Our Dynamo scripting services empower Revit users with automation, precision, and efficiency. From parametric modeling to data management, we develop customized scripts that simplify complex processes, reduce errors, and accelerate project delivery.
We use cookies to analyze website traffic and optimize your website experience. By accepting our use of cookies, your data will be aggregated with all other user data.